Rende (CS) Contrada Lecco - Via Alvise Ca' da Mosto, 4 - Industriale

310.000,00 € 310.000,00 €

Dati della proprietà
Codice ASA89
Categoria Industriale
Tipologia Fabbricato Industriale
Superficie Esterna 800.00
Superficie Interna 541.00
Altezza 6.05
Tribunale nessuno

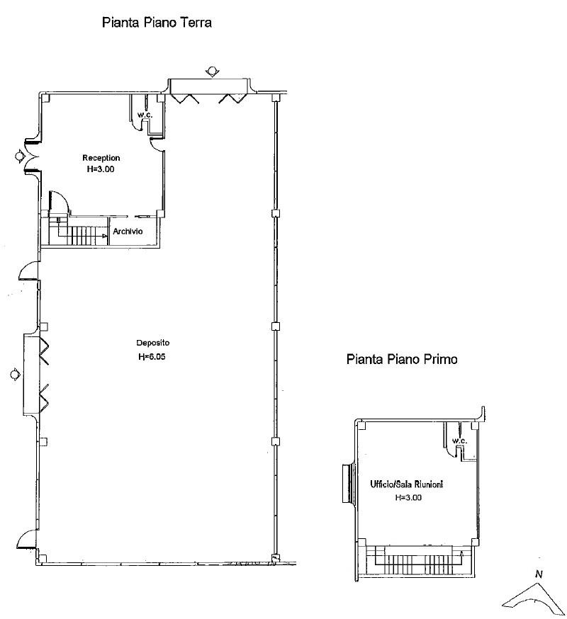
In zona produttiva di Rende, in Contrada Lecco, proponiamo in vendita un capannone industriale con annessa palazzina uffici, disposto su due livelli e completo di area esterna di pertinenza.

L’immobile ha una superficie complessiva di circa 1340 mq ed è così composto:

  • al piano terra un ampio deposito di circa 409 mq (Altezza 6,05m) con reception di 66mq, archivio e servizi igienici;
  • al piano primo un ufficio di circa 66 mq con ulteriori servizi.

La struttura, è circondata su due lati da un piazzale asfaltato di circa 800 mq che consente un’agevole movimentazione dei mezzi pesanti oltre a garantire spazi per parcheggio e manovra.

L’immobile si trova in una posizione strategica: dista soli 1,9 km dal casello autostradale Rende–Cosenza Nord dell’autostrada A2, 6,5 km dal centro di Rende e poco più di un chilometro da Quattromiglia. L’area circostante è caratterizzata da altre attività produttive e industriali, favorendo sinergie e funzionalità operative.

Attualmente libero, il capannone è adatto a varie destinazioni d’uso, come deposito, attività artigianali, logistica o magazzino.

Per ulteriori informazioni o per fissare un appuntamento di visita è possibile contattarci direttamente.

Disclaimer

Le informazioni contenute nel presente annuncio sono da considerarsi puramente indicative e non costituiscono elemento contrattuale. Le superfici riportate potranno essere soggette a verifica. L’accesso agli immobili è subordinato alla disponibilità della proprietà.

 


D66F381A-9A1C-11F0-B99C-B2C57FFE7E16

Rende (CS) Contrada Lecco - Via Alvise Ca' da Mosto, 4 - Industriale

In zona produttiva di Rende, in Contrada Lecco, proponiamo in vendita un capannone industriale con annessa palazzina uffici, disposto su due livelli e completo di area esterna di pertinenza.

L’immobile ha una superfi …

Questo contenuto è disponibile ai soli utenti registrati.
Sei già registrato?
Non sei ancora registrato?
Crea il tuo account