Sinalunga (SI) Via Leonardo Da Vinci n. 9 - Commerciale

600.000,00 € 600.000,00 €

Dati della proprietà
Codice ASPR35
Categoria Commerciale
Tipologia Fabbricato commerciale
Superficie Interna 1200.00
Altezza 4.50
Tribunale nessuno

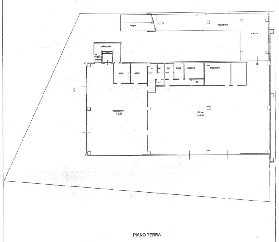
Complesso a destinazione commerciale/artigianale di circa 1.200 mq su due livelli (600 mq per piano) sito nella zona industriale di Sinalunga in Via Leonardo Da Vinci n. 9, composto da due piani:
• Piano Terra: attualmente affittato a "Officine Rossetti", attività consolidata nel settore automotive. Include officina e area espositiva interna ed esterna, con ottima visibilità dalla strada.
• Piano Primo: superficie equivalente, attualmente libero. Accesso tramite rampa esterna. Ideale per magazzino, uffici o ampliamento attività
Posizione strategica con comodi collegamenti alla E35 e alla Val di Chiana. Ottima movimentazione di mezzi e vicinanza ad altre attività.

Stato dell’immobile
Ottime condizioni generali. Piano terra mantenuto in ordine grazie alla presenza dell'attività. Piano primo non utilizzato ma in buono stato conservativo.
Opportunità d’investimento
• Redditività immediata grazie al canone annuo di locazione del piano terra (€ 47.400)
• Ideale per investitori o imprese che cercano spazi commerciali o logistici
• Possibilità di sviluppo del piano superiore

È inoltre importante evidenziare che, pur essendo il piano terra attualmente locato, il conduttore ha già dato la disponibilità a liberare l’immobile entro 6 mesi dall’accettazione di una proposta. Questo consente al futuro acquirente una doppia opportunità: mantenere l’investimento a reddito oppure disporre dell’asset libero in tempi rapidi per un utilizzo diretto o una diversa progettualità.


Disclaimer
Le informazioni contenute nel presente annuncio sono da considerarsi puramente indicative e non costituiscono elemento contrattuale. Le superfici riportate potranno essere soggette a verifica. L’accesso agli immobili è subordinato alla disponibilità della proprietà.


E017F586-AB43-11F0-A294-3AA07FFE7E16

Sinalunga (SI) Via Leonardo Da Vinci n. 9 - Commerciale

Complesso a destinazione commerciale/artigianale di circa 1.200 mq su due livelli (600 mq per piano) sito nella zona industriale di Sinalunga in Via Leonardo Da Vinci n. 9, composto da due piani:
• Piano Terra: attu …

Questo contenuto è disponibile ai soli utenti registrati.
Sei già registrato?
Non sei ancora registrato?
Crea il tuo account