Albiate (MB) Via Gatti 15 - Residenziale

218.500,00 € 218.500,00 €

Dati della proprietà
Codice ASPR42
Categoria Residenziale
Tipologia Fabbricato
Superficie Interna 435.00
Altezza 6.60
Tribunale nessuno

Rif: LOM1280

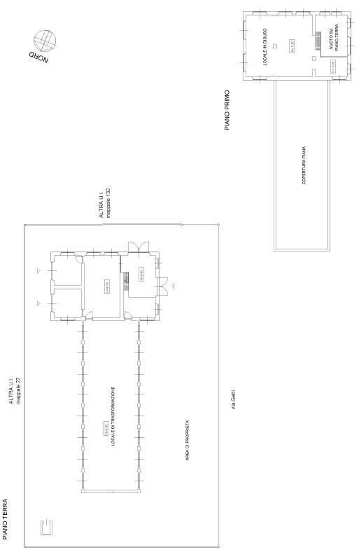
Proponiamo in vendita un immobile indipendente situato ad Albiate, in via Gatti 14, al confine con Sovico, in una zona periferica ma ben collegata. La proprietà si trova in un’area a vocazione residenziale, commerciale e produttiva, a pochi minuti da Monza e dalle principali arterie stradali che collegano Milano alla Brianza.

Trattasi di un fabbricato indipendente su quattro lati, con area esterna privata recintata (attualmente da ripristinare), precedentemente adibito a cabina elettrica Enel, pertanto accatastato in categoria D/1. L’edificio si sviluppa su due livelli con ampie altezze interne:

  • Piano terra: circa 325 mq
  • Piano primo: circa 110 mq

Struttura in muratura, con ampie superfici finestrate e forte potenziale di riconversione. L’architettura industriale dell’immobile lo rende ideale per progetti di recupero e trasformazione in loft o soluzioni abitative di carattere contemporaneo.

L’immobile è completamente da ristrutturare, internamente ed esternamente

Disclaimer

Le informazioni contenute nel presente annuncio sono da considerarsi puramente indicative e non costituiscono elemento contrattuale. Le superfici riportate potranno essere soggette a verifica. L’accesso agli immobili è subordinato alla disponibilità della proprietà.


50CBA0F8-B593-11F0-A8E0-8BD47FFE7E16

Albiate (MB) Via Gatti 15 - Residenziale

Rif: LOM1280

Proponiamo in vendita un immobile indipendente situato ad Albiate, in via Gatti 14, al confine con Sovico, in una zona periferica ma ben collegata. La proprietà si trova in un’area a vocazione residenziale, commerci …

Questo contenuto è disponibile ai soli utenti registrati.
Sei già registrato?
Non sei ancora registrato?
Crea il tuo account